Аренда офиса, Бологое, Ленина пл., 6, Тверская область
- Регион
- Тверская область
| Адрес | Бологое, Ленина пл., 6Объект на карте |
- Этаж
- 2 этаж в 1-этажном доме
- Общая площадь
- 125.70 м2
- Дата обновления
- 03.05.2026
- Дата размещения
- 01.02.2026
Код лота: РАД-447630. Реализуется на торгах.
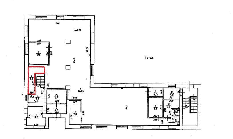
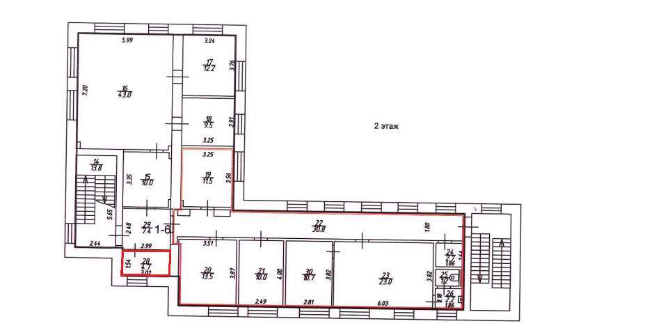
Предлагается к продаже на торгах право аренды единым лотом объектов нежилых помещений, находящихся в собственности ПАО «Сбербанк», расположенных по адресу: Тверская область, г. Бологое, пл. Ленина, д. 6: Объект 1: Нежилое помещение, №1-6, общей площадью 105,6 кв. м., с кадастровым номером 69: 38: 0081304: 517; Объект 2: 119/409 доли в праве общей долевой собственности в доле в праве 228/409 на нежилое помещение № 1-1, этаж № 1, этаж № 2, общей площадью 40,9 кв. м, с кадастровым номером 69: 38: 0081304: 512; Объект 3: Нежилое помещение, №1-7, общей площадью 4,7 кв. м., с кадастровым номером 69: 38: 0081304: 518; Объект 4: Нежилое помещение, №1-3, общей площадью 3,5 кв. м., с кадастровым номером 69: 38: 0081304: 514; Существенное условие сдачи в аренду: Передача Объектов Арендатору осуществляется по акту приема-передачи не позднее 01.08.2026 г. При этом в случае, если Арендодатель готов передать Объект ранее указанного срока, Арендатор обязан принять Объект в течении 15 (Пятнадцати) рабочих дней со дня получения соответствующего уведомления от Арендодателя. Срок аренды: 5 (пять) лет с даты подписания Сторонами акта приема-передачи Объекта. Начальная цена (величина постоянной составляющей месячной арендной платы) Лота 1 112 043 рубля 00 копеек (в том числе НДС 22%) . Помещения расположены на 2-м этаже кирпичного нежилого здания 1995 года постройки, со всеми необходимыми коммуникациями. Общий вход со двора. Местонахождение и транспортная доступность: Здание, в котором реализуются помещения 2-го этажа, расположено в центральной части города, на пл. Ленина, с красивыми видами из окон реализуемых помещений на сквер Кирова и озеро Бологое. Соседями являются: торговый центр, ДК «Аврора». В ближайшем окружении: многоквартирные жилые дома, социально-культурные и торговые объекты. Транспортная и пешеходная доступность-отличная. Открытая парковка рядом со зданием. Факторы инвестиционной привлекательности: - помещения расположены в сложившейся застройке с высоким пешеходным и автомобильным трафиком; - возможность использовать помещения под различные направления деятельности: торговля, бытовые услуги, апартаменты и др. Торги проводятся на ЭТП РАД Lot-online, код лота РАД-447630.
https: //catalog. lot-online. ru/index. php?dispatch=products. view&product_id=1599746
Предлагается к продаже на торгах право аренды единым лотом объектов нежилых помещений, находящихся в собственности ПАО «Сбербанк», расположенных по адресу: Тверская область, г. Бологое, пл. Ленина, д. 6: Объект 1: Нежилое помещение, №1-6, общей площадью 105,6 кв. м., с кадастровым номером 69: 38: 0081304: 517; Объект 2: 119/409 доли в праве общей долевой собственности в доле в праве 228/409 на нежилое помещение № 1-1, этаж № 1, этаж № 2, общей площадью 40,9 кв. м, с кадастровым номером 69: 38: 0081304: 512; Объект 3: Нежилое помещение, №1-7, общей площадью 4,7 кв. м., с кадастровым номером 69: 38: 0081304: 518; Объект 4: Нежилое помещение, №1-3, общей площадью 3,5 кв. м., с кадастровым номером 69: 38: 0081304: 514; Существенное условие сдачи в аренду: Передача Объектов Арендатору осуществляется по акту приема-передачи не позднее 01.08.2026 г. При этом в случае, если Арендодатель готов передать Объект ранее указанного срока, Арендатор обязан принять Объект в течении 15 (Пятнадцати) рабочих дней со дня получения соответствующего уведомления от Арендодателя. Срок аренды: 5 (пять) лет с даты подписания Сторонами акта приема-передачи Объекта. Начальная цена (величина постоянной составляющей месячной арендной платы) Лота 1 112 043 рубля 00 копеек (в том числе НДС 22%) . Помещения расположены на 2-м этаже кирпичного нежилого здания 1995 года постройки, со всеми необходимыми коммуникациями. Общий вход со двора. Местонахождение и транспортная доступность: Здание, в котором реализуются помещения 2-го этажа, расположено в центральной части города, на пл. Ленина, с красивыми видами из окон реализуемых помещений на сквер Кирова и озеро Бологое. Соседями являются: торговый центр, ДК «Аврора». В ближайшем окружении: многоквартирные жилые дома, социально-культурные и торговые объекты. Транспортная и пешеходная доступность-отличная. Открытая парковка рядом со зданием. Факторы инвестиционной привлекательности: - помещения расположены в сложившейся застройке с высоким пешеходным и автомобильным трафиком; - возможность использовать помещения под различные направления деятельности: торговля, бытовые услуги, апартаменты и др. Торги проводятся на ЭТП РАД Lot-online, код лота РАД-447630.
https: //catalog. lot-online. ru/index. php?dispatch=products. view&product_id=1599746
















